Всего товаров: 0
Сумма: 0 руб.
(495) 797-01-52
(916) 421-73-00(903) 011-07-11
пн.-пт. с 9 до 18 сб. с 10 до 15 вс. выходной
                    	                                                                
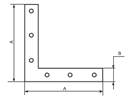
        Перфорированный уголок NA7 75*12*2
 
                                    Технические характеристики
                     
        
             
 Примечание:Применяется для соединения различных деревянных конструкций расположенных в одной плоскости под углом 90°. Представляет собой плоский стальной уголок толщиной 2мм с отверстиями для крепежных элементов. Монтаж к деревянному основанию производится с помощью гвоздей или саморезов. Широко используется в деревянном домостроении, оконном производстве, при сборке лестниц и прочих деревянных конструкций.  |